欢迎来到临朐华美铝业有限公司网站!
电话:0536-3715676-
网站地图
-
XML
中文
英文
中文
首 页
关于我们
产品中心
新闻中心
工程案例
联系我们
产品分类
Product categories
木纹系列
工业铝型材
铝网系列
门窗系列
幕墙系列
通用系列
联系我们
Contact Us
临朐华美铝业有限公司
联系人(People):赵总
手机(Phone):15863694949
电话(Tel):0536-3715676
传真(Fax):0536-3719958
邮箱(Email):
lqhuameilvye@163.com
地址(Add):山东省临朐县东城街道粟北路3877号
产品分类
您现在的位置:
首页
>
产品中心
>
幕墙系列
150系列幕墙型材图
150系列幕墙型材图
150系列幕墙型材图
150系列幕墙型材图
150系列幕墙型材图
150系列幕墙型材图
150系列全隐框中空玻璃幕墙结构图
120M系列幕墙型材图
120M系列全隐中空玻璃幕墙结构图
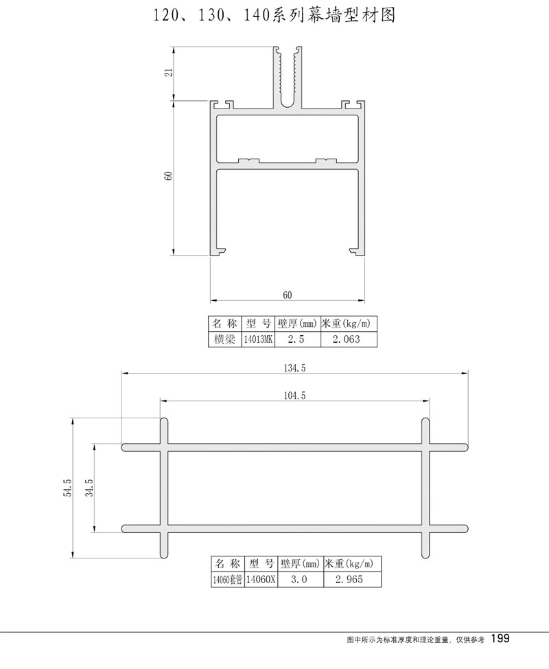
120、130、140系列幕墙型材图
120、130、140系列幕墙型材图
120、130、140系列幕墙型材图
1
2
3
4